Mariastraat 183 3117 NK Schiedam

71m2
Wonen
2
Kamers
0m2
Perceel
1916
Bouwjaar
Op zoek naar een prettige woning met een gunstige ligging én alle voorzieningen in de buurt? Dan is deze bovenwoning aan de Mariastraat 183 in Schiedam-West zeker het bekijken waard. Een fijne plek voor starters of stellen die comfortabel willen wonen op korte afstand van Rotterdam en de historische binnenstad van Schiedam.

Zie jij jezelf hier al wonen? Neem snel contact op met Moerman & De Jong Makelaars en plan een bezichtiging!
Begane grond
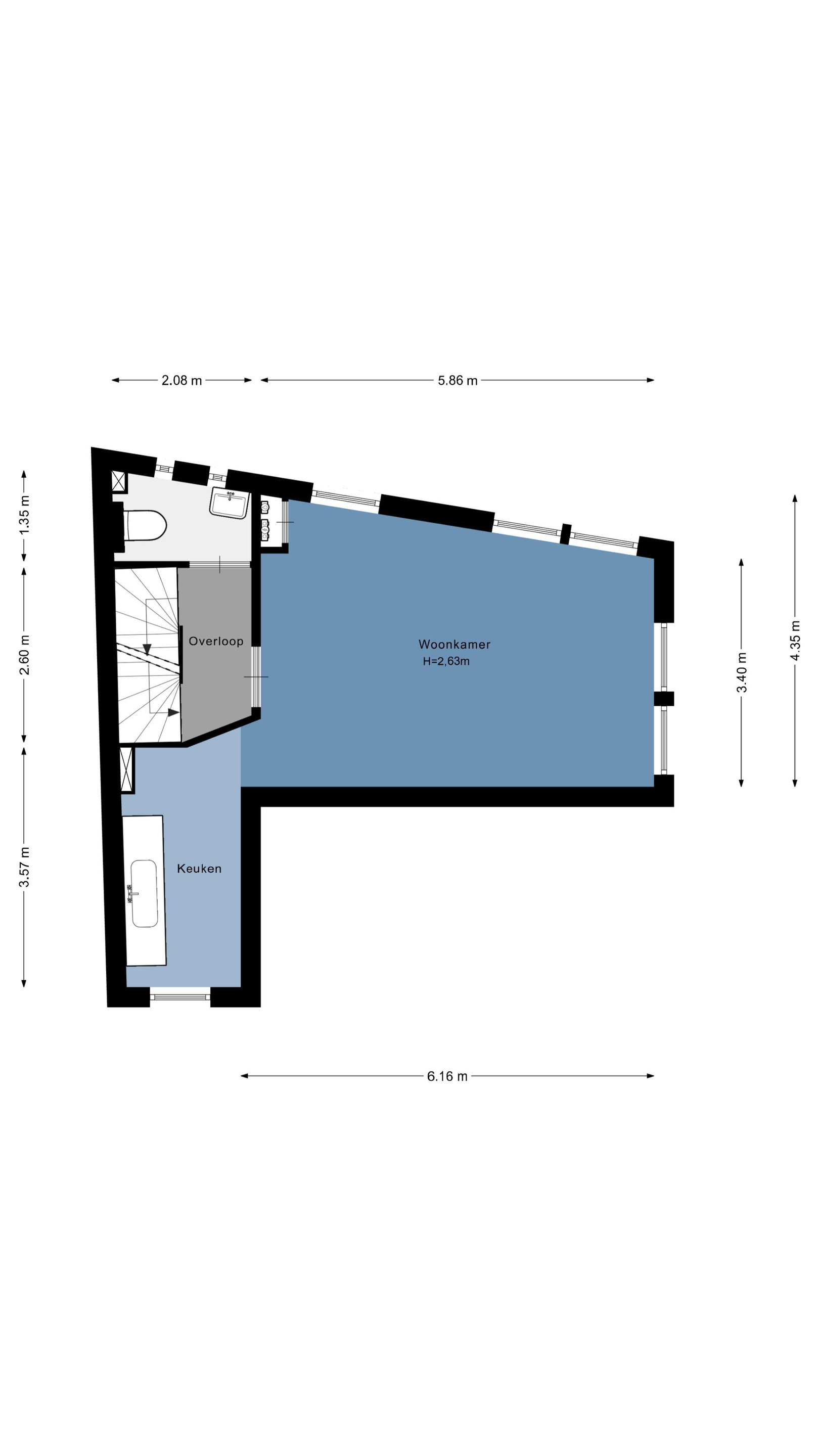
Via uw eigen entree bereikt u de woning. Op de eerste verdieping vindt u de lichte woonkamer en de keuken voorzien van een eenvoudige keukeninrichting.
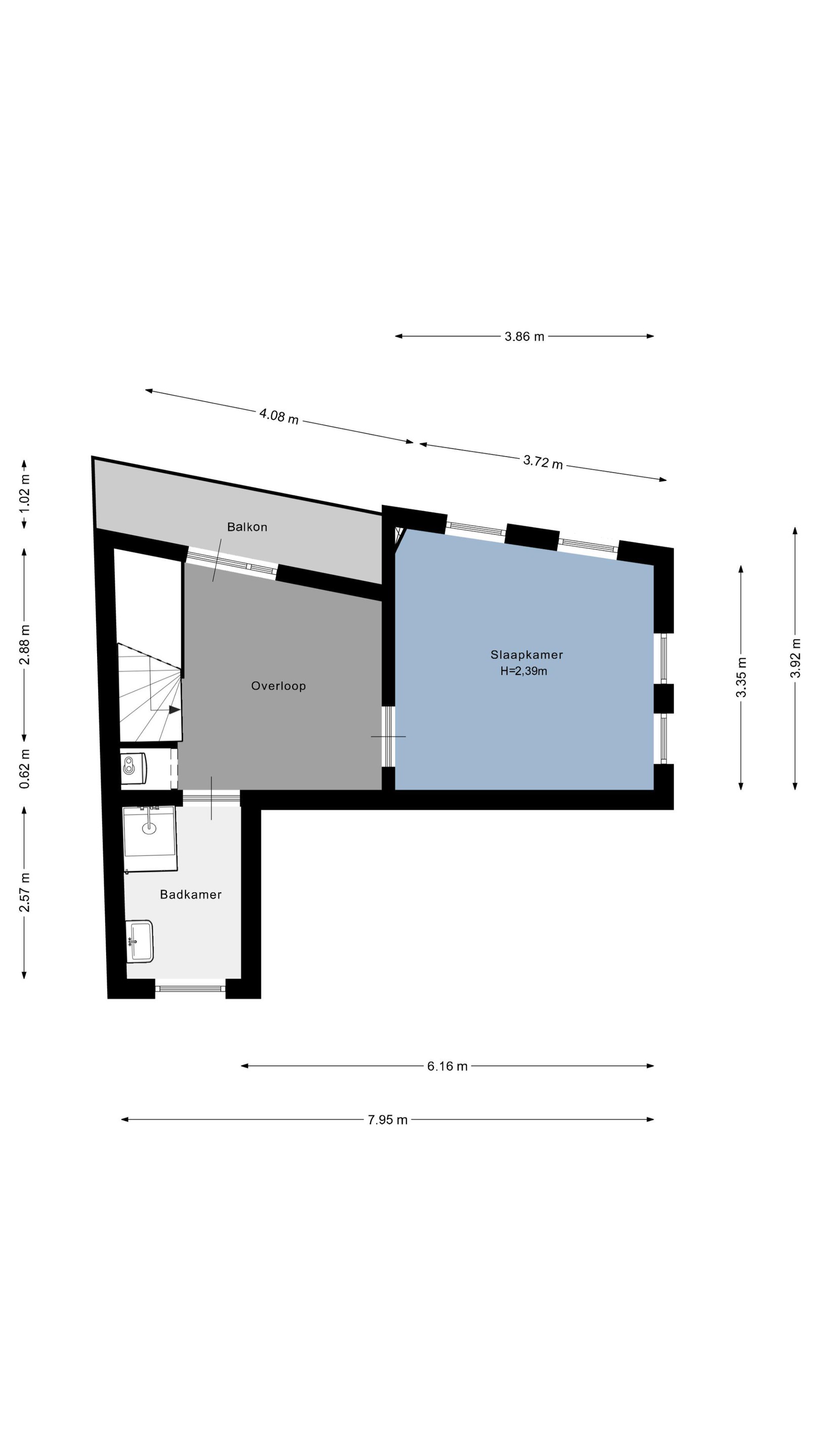
Op de tweede verdieping bevinden zich de slaapkamer, de badkamer met douche, wastafel en wasmachineaansluiting, en het balkon.

Locatie
De ligging in Schiedam-West is zeer gunstig. U woont hier rustig, maar met alle voorzieningen dichtbij. De woning ligt op korte afstand van de historische binnenstad van Schiedam, met winkels en gezellige restaurants. Binnen enkele minuten bereikt u metrohalte Troelstralaan en station Schiedam Centrum. Daarmee bent u razendsnel in Rotterdam en andere steden in de regio. Voor ontspanning en recreatie liggen het Julianapark en het Volkspark bijna om de hoek.

Details
Let op: de vraagprijs is een bieden vanaf prijs
Woonoppervlak: 71 m2
Voor de indeling verwijzen wij naar de plattegronden
Gelegen op eigen grond
Geheel voorzien van kunststof kozijnen met dubbel glas
Verwarming en warm water via CV-ketel
VvE bijdrage: € 50,- per maand
Energielabel: F
Ouderdomsclausule, asbestclausule en niet-zelfbewoningsclausule van toepassing

Biedlogboek Vanaf 1 januari 2023 zijn makelaars wettelijk verplicht een biedlogboek bij te houden bij de verkoop van bestaande woningen (en wanneer de koper en/of de verkoper een particulier is). Biedingen kunt u per die datum, en indien gewenst, nog steeds mondeling met ons bespreken maar dient u daarna digitaal aan ons te bevestigen via Eerlijk Bieden. Toelichtingsclausule BBMI/NEN2580 De meetinstructie is gebaseerd op de BBMI/NEN2580. De meetinstructie is bedoeld om een meer eenduidige manier van meten toe te passen voor het geven van een indicatie van de gebruiksoppervlakte. De meetinstructie sluit verschillen in meetuitkomsten niet volledig uit, door bijvoorbeeld interpretatieverschillen, afrondingen of beperkingen bij het uitvoeren van de meting.

Rechtsgeldige koopovereenkomst pas ná ondertekening
Een mondelinge overeenstemming tussen de particuliere verkoper en de particuliere koper is niet rechtsgeldig. Met andere woorden: er is geen koop. Er is pas sprake van een rechtsgeldige koop als de particuliere verkoper en de particuliere koper de koopovereenkomst hebben ondertekend. Dit vloeit voort uit artikel 7:2 Burgerlijk Wetboek. Een bevestiging van de mondelinge overeenstemming per e-mail of een toegestuurd concept van de koopovereenkomst wordt overigens niet gezien als een ‘ondertekende koopovereenkomst’.

Deze informatie is met zorg samengesteld, maar voor de juistheid ervan kan door Moerman & De Jong Makelaars geen aansprakelijkheid worden aanvaard, noch kan aan de vermelde gegevens enig recht worden ontleend. Nadrukkelijk is vermeld dat deze informatieverstrekking niet als een aanbieding of offerte mag worden beschouwd.

Lees meer

Kenmerken

Overdracht

Prijs per m2
€ 2.817
Aangeboden sinds
27 november 2025
Status
Beschikbaar
Aanvaarding
In overleg

Bouw

Soort appartement
Bovenwoning, dubbel bovenhuis
Soort bouw
Bestaande bouw
Bouwjaar
1916
Soort dak
Plat dak
Staat van onderhouden binnen
Redelijk
Staat van onderhouden buiten
Redelijk

Oppervlakte en inhoud

Inhoud van de woning
243 m3
Oppervlakte gebouwgebonden buitenruimten
4 m2

Indeling

Aantal kamers
2
Aantal slaapkamers
1
Aantal woonlagen
2
Voorzieningen
Vve checklist, balkon

Buitenruimte

Balkon
Ja
Schuur/berging
Nee

Maandlasten berekenen

De maandlasten voor je woning bestaan uit meer dan alleen de hypotheeklasten. Hieronder vind je een overzicht van de bijkomende kosten en lasten. Zo weet je precies wat je huis per maand gaat kosten. En met de handige vergelijkers kun je ook nog eens snel de beste deals sluiten!

  • Kaart
  • Streetview