Deimanstraat 72 2522 BM 's-Gravenhage

92m2
Wonen
4
Kamers
0m2
Perceel
1925
Bouwjaar
INSTAPKLAAR 4-KAMER APPARTEMENT | CA. 92M2 | RUIM ZONNIG DAKTERRAS | VOLLEDIG GERENOVEERDE KEUKEN, TOILET EN BADKAMER | CENTRALE LIGGING | NABIJ DEN HAAG HS | OPLEVERING KAN PER DIRECT
Indeling
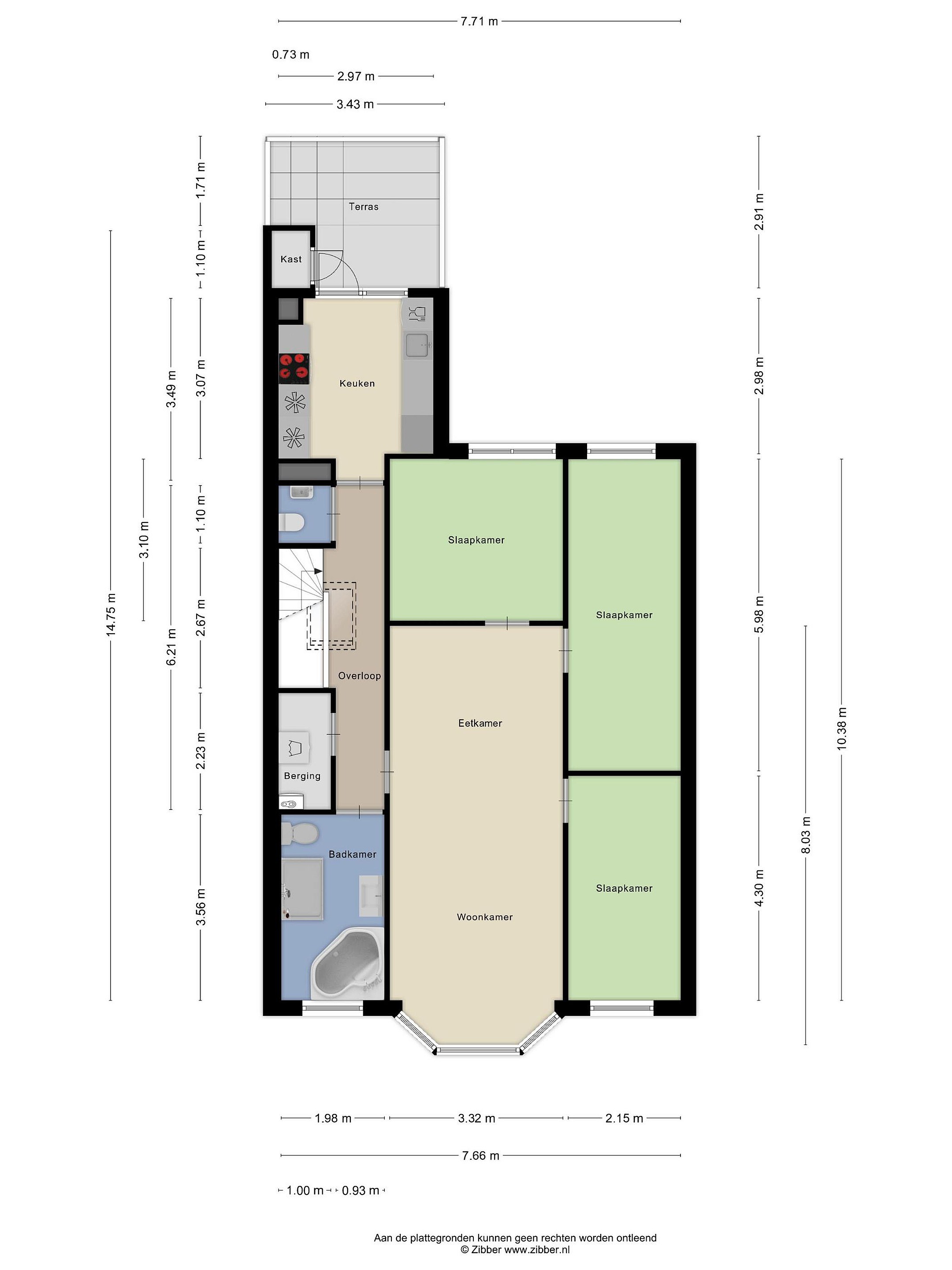
Via de entree en trapopgang kom je in de lichte hal. Links tref je de moderne open keuken: een heerlijke plek om te koken en samen te komen. Vanuit hier stap je direct het grote dakterras op, perfect om te genieten van een kop koffie in de ochtendzon of lange zomeravonden met vrienden. De berging op het terras zorgt voor extra gemak.

De woonkamer straalt ruimte en licht uit dankzij de grote ramen aan beide zijden. Vanuit hier en vanuit meerdere vertrekken geniet je bovendien van het uitzicht op het parkje voor de deur – een groen en rustgevend decor in elk seizoen. De drie slaapkamers liggen verdeeld aan weerszijden van de woning en bieden volop mogelijkheden: van master bedroom tot kinderkamer of thuiskantoor.
De badkamer is een echte eyecatcher: volledig vernieuwd, modern afgewerkt en voorzien van zowel een heerlijke douche als een comfortabel ligbad. Een plek waar je iedere dag tot rust komt.

Waarom deze woning zo bijzonder is:
- Eigen grond
- 92 m2 woonoppervlak, slim ingedeeld
- Drie slaapkamers en een ruime woonkamer
- Luxe badkamer met douche én ligbad en toilet
- 2 toilets
- Groot dakterras met nette berging
- Groen uitzicht op een parkje
- Volledig gerenoveerd in 2025: keuken, badkamer, toilet, stucwerk en meer
- Veel natuurlijk licht door de grote ramen en dubbel glas
- Uitstekend onderhouden, instapklaar
- Parkeren kan eenvoudig met vergunning

Ligging
Deimanstraat 72 ligt in een fijne, levendige buurt met alle voorzieningen binnen handbereik. Winkels, scholen en openbaar vervoer zijn dichtbij en ook het stadscentrum en groene omgevingen zijn makkelijk bereikbaar. Hier woon je comfortabel, modern én met volop ruimte om te genieten.
Omgeving

Gelegen in een gezellig en leuk stukje van de wijk. Door de centrale ligging bevinden zich in de directe nabijheid het centrum van Rijswijk (Herenstraat), diverse scholen (o.a. Haagse Hogeschool), winkels (o.a. Megastores), openbaar vervoer (tram 1, 15, 16 en 17), NS Station Hollands Spoor, diverse uitvalswegen en de snelwegen A-4 en A-13. Kortom: een prima woning op een centrale locatie.

Benieuwd naar Deimanstraat 72? Plan snel een bezichtiging en ervaar zelf de mogelijkheden van deze woning!
Lees meer

Kenmerken

Overdracht

Prijs per m2
€ 3.250
Aangeboden sinds
10 september 2025
Status
Beschikbaar
Aanvaarding
Direct

Bouw

Soort appartement
Bovenwoning, appartement
Soort bouw
Bestaande bouw
Bouwjaar
1925
Staat van onderhouden binnen
Uitstekend
Staat van onderhouden buiten
Uitstekend

Oppervlakte en inhoud

Indeling

Aantal kamers
4
Aantal slaapkamers
3
Aantal woonlagen
1
Voorzieningen
Schuur/berging

Buitenruimte

Balkon
Nee
Schuur/berging
Ja

Maandlasten berekenen

De maandlasten voor je woning bestaan uit meer dan alleen de hypotheeklasten. Hieronder vind je een overzicht van de bijkomende kosten en lasten. Zo weet je precies wat je huis per maand gaat kosten. En met de handige vergelijkers kun je ook nog eens snel de beste deals sluiten!

  • Kaart
  • Streetview