Annie Foorestraat 21 2522 HN 's-Gravenhage

79m2
Wonen
3
Kamers
0m2
Perceel
1939
Bouwjaar
Deze sfeervolle en goed onderhouden 3-kamer bovenwoning met drie woonlagen is gelegen in een rustige straat in de gezellige wijk Laakkwartier. De woning ademt de sfeer van de jaren '30, gecombineerd met eigentijdse elementen. Dankzij het neutrale kleurgebruik is het appartement instapklaar en biedt het een moderne en comfortabele woonsfeer. Hoogwaardige, onderhoudsvrije materialen zijn gebruikt, voornamelijk kunststof kozijnen en Keralit voor de uitbouw van de keuken en het dakkapel. Aan de achterzijde bevindt zich een zonnig balkon op het zuidwesten, waar u heerlijk kunt genieten van de middag- en avondzon.

Ligging en omgeving
De woning is gunstig gelegen ten opzichte van diverse voorzieningen:
- Scholen, winkels en supermarkten bevinden zich op loopafstand
- Het centrum van Den Haag is binnen 15 minuten per fiets bereikbaar
- De Haagse Markt ligt op slechts 14 minuten fietsen
- Diverse tramhaltes zijn op loopafstand te vinden
- NS Station Moerwijk is binnen enkele minuten met de fiets bereikbaar

Indeling
Begane grond:
Entree via eigen voordeur, met toegang tot de binnentrap en de meterkast.

Eerste verdieping:
Overloop, ruime en lichte woonkamer, nette keuken voorzien van spoelbak, koelkast, uitschuifbare afzuigkap, kookplaat en veel kastruimte. Vanuit de keuken is er toegang tot het balkon.

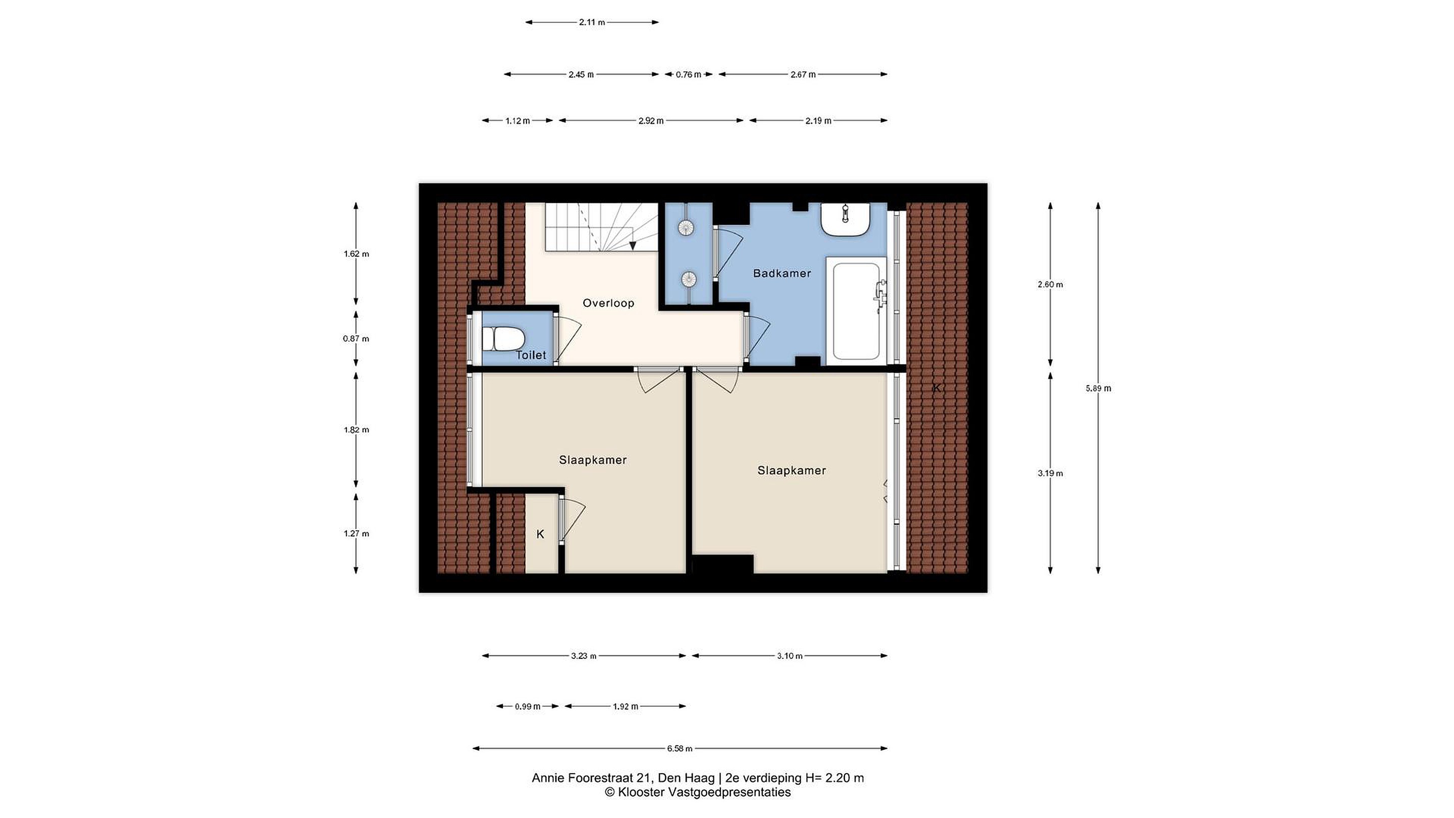
Tweede verdieping:
Overloop, moderne badkamer met jacuzzi, inloopdouche, wastafelmeubel, handdoekradiator, inbouwspotjes en betegeling tot aan het plafond.
Aan de achterzijde bevindt zich een slaapkamer met veel opbergruimte achter de knieschotten. De slaapkamer aan de voorzijde beschikt over een inbouwkast. Separate toiletruimte.

Topverdieping / zolder:
Er is een opstelplaats voor de cv-ketel, ruime extra bergruimte en de mogelijkheid om na een nokverhoging een derde slaapkamer te realiseren.

Bijzonderheden:
- Woonoppervlakte: 79,70 m2
- Aantal slaapkamers: 2
- Energielabel: E
- Gelegen op eigen grond
- Grotendeels voorzien van dubbel glas (HR-glas), houten en kunststof kozijnen
- Vereniging van Eigenaren in oprichting (1/2e aandeel)
- Verwarming en warm water via Intergas combiketel (bouwjaar 2024)
- Betaald parkeren van maandag t/m zondag (18:00 – 24:00 uur)
- Voldoende openbare parkeergelegenheid in de directe omgeving
- Openbaar vervoer: buslijnen 22 en 29, tramlijnen 16 en 17
- Oplevering in overleg
- Nabij diverse voorzieningen: winkels, scholen, speeltuinen, recreatiegebied Rijswijkse Bos, sportfaciliteiten en kinderdagverblijven.



Charming and well-maintained 3-room upper-level apartment in the lively Laakkwartier neighborhood.

This charming and well-maintained 3-room upper-level apartment, spread over three floors, is located on a quiet street in the vibrant Laakkwartier neighborhood. The home exudes the charm of the 1930s, combined with contemporary elements. Thanks to the neutral color scheme, the apartment is move-in ready and offers a modern and comfortable living atmosphere. High-quality, low-maintenance materials have been used, including mostly plastic window frames and Keralit for the kitchen extension and the dormer. At the rear, there is a sunny southwest-facing balcony where you can enjoy the afternoon and evening sun.

Location and Surroundings
The property is conveniently located near various amenities:
Schools, shops, and supermarkets are within walking distance
The city center of The Hague is reachable by bike within 15 minutes
The Hague Market is only a 14-minute bike ride away
Several tram stops are within walking distance
NS Station Moerwijk is just a few minutes away by bike

Layout
Ground Floor:
Private entrance with access to the internal staircase and the meter cupboard.

First Floor:
Landing, spacious and bright living room, neat kitchen equipped with a sink, refrigerator, retractable extractor hood, stovetop, and ample cupboard space. The kitchen provides access to the balcony.

Second Floor:
Landing, modern bathroom with jacuzzi, walk-in shower, vanity unit, towel radiator, recessed lighting, and floor-to-ceiling tiling.
At the rear is a bedroom with ample storage space behind the knee walls. The front bedroom features a built-in wardrobe. Separate toilet room.

Top Floor / Attic:
There is a designated space for the central heating boiler, ample additional storage, and the possibility to create a third bedroom after raising the roof ridge.

Details:
Living area: 79,70 m2
Number of bedrooms: 2
Energy label: E
Located on freehold land
Largely fitted with double glazing (HR glass), wooden and plastic window frames
Homeowners Association (VvE) in the process of being established (1/2 share)
Heating and hot water via Intergas combi boiler (built in 2024)
Paid parking from Monday to Sunday (6:00 PM – 12:00 AM)
Ample public parking in the immediate vicinity
Public transport: bus lines 22 and 29, tram lines 16 and 17
Delivery in consultation
Close to many amenities: shops, schools, playgrounds, recreational area Rijswijkse Bos, sports facilities, and daycare centers
Lees meer

Kenmerken

Overdracht

Prijs per m2
€ 3.450
Aangeboden sinds
23 juni 2025
Status
Beschikbaar
Aanvaarding
In overleg

Bouw

Soort appartement
Bovenwoning
Soort bouw
Bestaande bouw
Bouwjaar
1939
Soort dak
Samengesteld dak
Staat van onderhouden binnen
Goed
Staat van onderhouden buiten
Goed

Oppervlakte en inhoud

Inhoud van de woning
285 m3
Oppervlakte gebouwgebonden buitenruimten
1 m2
Oppervlakte overige inpandige ruimten
7 m2

Indeling

Aantal kamers
3
Aantal slaapkamers
2
Aantal woonlagen
4
Voorzieningen
Balkon

Buitenruimte

Balkon
Ja
Schuur/berging
Nee

Maandlasten berekenen

De maandlasten voor je woning bestaan uit meer dan alleen de hypotheeklasten. Hieronder vind je een overzicht van de bijkomende kosten en lasten. Zo weet je precies wat je huis per maand gaat kosten. En met de handige vergelijkers kun je ook nog eens snel de beste deals sluiten!

  • Kaart
  • Streetview