Voorstraat 29 3135 HV Vlaardingen

69m2
Wonen
3
Kamers
0m2
Perceel
1924
Bouwjaar
Leuk 2/3 kamer hoek appartement (begane grond plus bovenverdieping) met grote zonnige tuin in het gewilde Vlaardingen Ambacht.

Ideale ligging: op loopafstand van het gezellige centrum, diverse scholen, het Oranjepark en de Vlaardingervaart.
Volop parkeermogelijkheden in de buurt en je zit binnen een paar minuten op de A20 en A4.

Een ideale woning voor starters!

Voor de exacte indeling en indicatieve maatvoering verwijzen wij je graag naar de plattegronden achter de foto's.
Indeling:

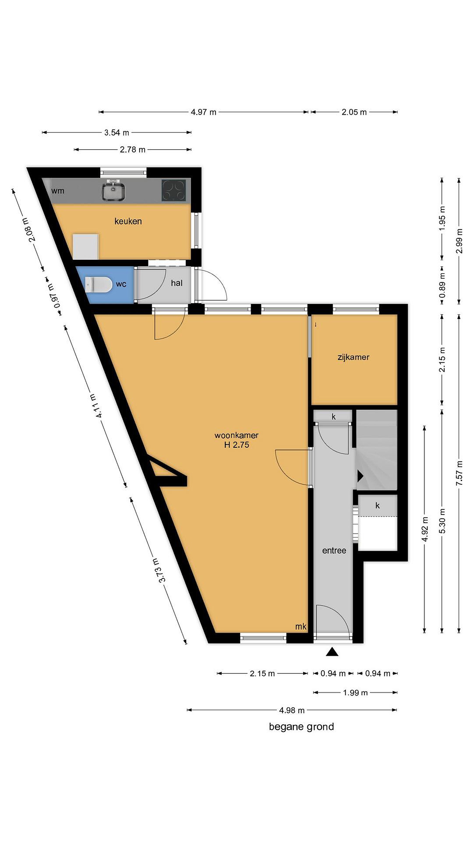
Begane grond:
Entree, lange gang met mooie houten vloer welke is doorgelegd naar de woonkamer, de zijkamer en de keuken. In de gang vind je een vaste kast, een garderobe-nis en de trapopgang naar de 2e verdieping.

De sfeervolle woonkamer is verrassend ruim en geeft toegang naar een kleine zijkamer, die ideaal gebruikt kan worden als hobby-, studeer of kinderkamer.

Via een hal met toilet bereik je de gezellige keuken, voorzien van een keukenboiler, oven, afzuigkap en vaatwasser. De losse koelkast is ter overname. Tevens is hier ruimte om een was/droogmachine te plaatsen.

Vanuit de keuken stap je op het terras. Een heerlijke plek om overdekt een drankje te nuttigen.
Via een kleine trap bereik je de zeer ruime zonnige geheel bestraatte tuin, gelegen op het zuidoosten.
Er is een schuur aanwezig en via een deur in de schutting kun je de achtergelegen parkeerplaats bereiken.

2e verdieping:
Hier vind je een ruime slaapkamer met dakkapel en een moderne geheel betegelde badkamer met inloopdouche, wastafel met spiegel, designradiator en 2e toilet.
Op de overloop is de CV-ketel opgesteld (Remeha Tzerra 2017). Tevens hangt hier een airco.

Bijzonderheden:
- Woonoppervlakte 69,8 m2, gemeten volgens NEN2580 norm
- Inhoud ca. 232 m3
- Bouwjaar 1924
- Gelegen op eigen grond
- Mooie doorgelegde houten parketvloer (2024)
- Gehele woning kunststof kozijnen met HR++ glas (2020)
- CV-combiketel Remeha Tzerra (2017)
- Slapende VvE wordt geactiveerd, opstalverzekering loopt al
- Energielabel G, geldig tot 18-09-2033
- Airco op de bovenverdieping
- Zelfbewoningsplicht
- Gedeelte dak wordt gerenoveerd (november 2025)
- Volop parkeermogelijkheden in de buurt
- Ouderdomsclausule van toepassing
- Oplevering rond 1 maart 2026

Je kunt een bezichtiging aanvragen door op funda het formulier in te vullen. Er wordt dan contact met je opgenomen om een afspraak in te plannen.

De vermelde informatie is van algemene aard en is niet meer dan een uitnodiging om de woning te bezichtigen of om in onderhandeling te treden. Hoewel deze tekst en plattegrond met zorg zijn samengesteld zijn wij niet aansprakelijk voor eventuele onjuistheden. De toegepaste Meetinstructie sluit verschillen in meetuitkomsten niet volledig uit, door bijvoorbeeld interpretatieverschillen, afrondingen of beperkingen bij het uitvoeren van de meting. Aan de inhoud van deze informatie kunnen geen rechten worden ontleend.

Lees meer

Kenmerken

Overdracht

Prijs per m2
€ 3.940
Aangeboden sinds
8 november 2025
Status
Beschikbaar
Aanvaarding
In overleg

Bouw

Soort appartement
Benedenwoning
Soort bouw
Bestaande bouw
Bouwjaar
1924
Soort dak
Samengesteld dak
Staat van onderhouden binnen
Goed
Staat van onderhouden buiten
Redelijk

Oppervlakte en inhoud

Inhoud van de woning
232 m3
Oppervlakte externe bergruimte
7 m2

Indeling

Aantal kamers
3
Aantal slaapkamers
2
Aantal woonlagen
2
Voorzieningen
Tuin, schuur/berging, airconditioning

Buitenruimte

Balkon
Nee
Schuur/berging
Ja

Maandlasten berekenen

De maandlasten voor je woning bestaan uit meer dan alleen de hypotheeklasten. Hieronder vind je een overzicht van de bijkomende kosten en lasten. Zo weet je precies wat je huis per maand gaat kosten. En met de handige vergelijkers kun je ook nog eens snel de beste deals sluiten!

  • Kaart
  • Streetview