Verkocht OV

Weesperstraat 68 2574 VW 's-Gravenhage

82m2
Wonen
4
Kamers
0m2
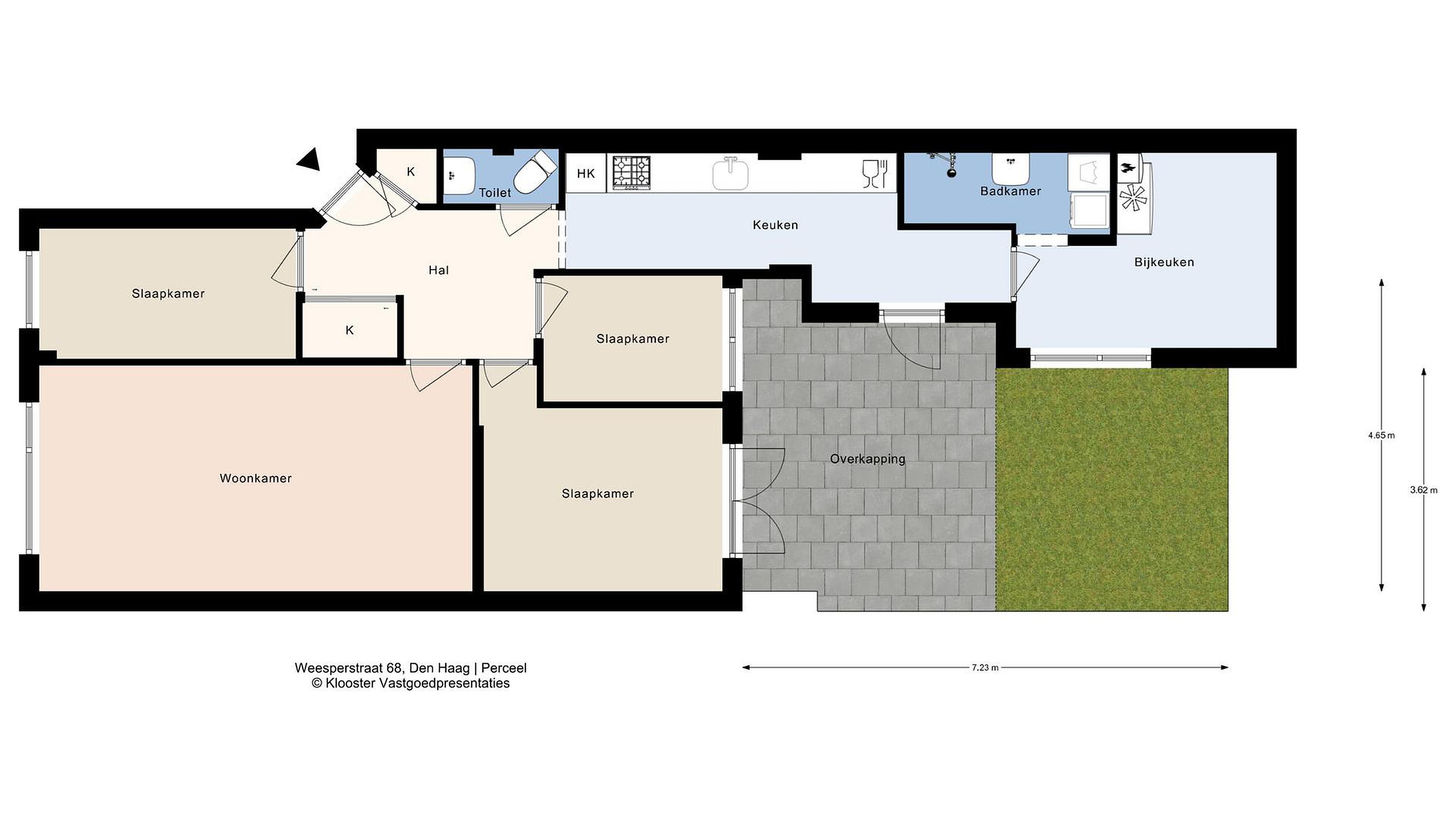
Perceel
1927
Bouwjaar
Bent u op zoek naar een fijne benedenwoning (ca. 82m2)met een zonnige achtertuin, 3 slaapkamers en een lichte woonkamer? Dan bent u hier aan het juiste adres
De woning is gelegen in een kindvriendelijke omgeving en ligt op loopafstand van een mooi, groot en groen plein met speelfaciliteiten. Tevens nabij diverse voorzieningen: winkelcentrum Leyenburg en de Dierenselaan voor uw dagelijkse boodschappen, sportfaciliteiten zoals o.a. aanwezig in het groene Zuiderpark en er is een goede bereikbaarheid met openbaar vervoer en auto. Met slechts 15 minuten fietsen ligt u heerlijk op het strand of loopt u door de duinen van badplaats Kijkduin.
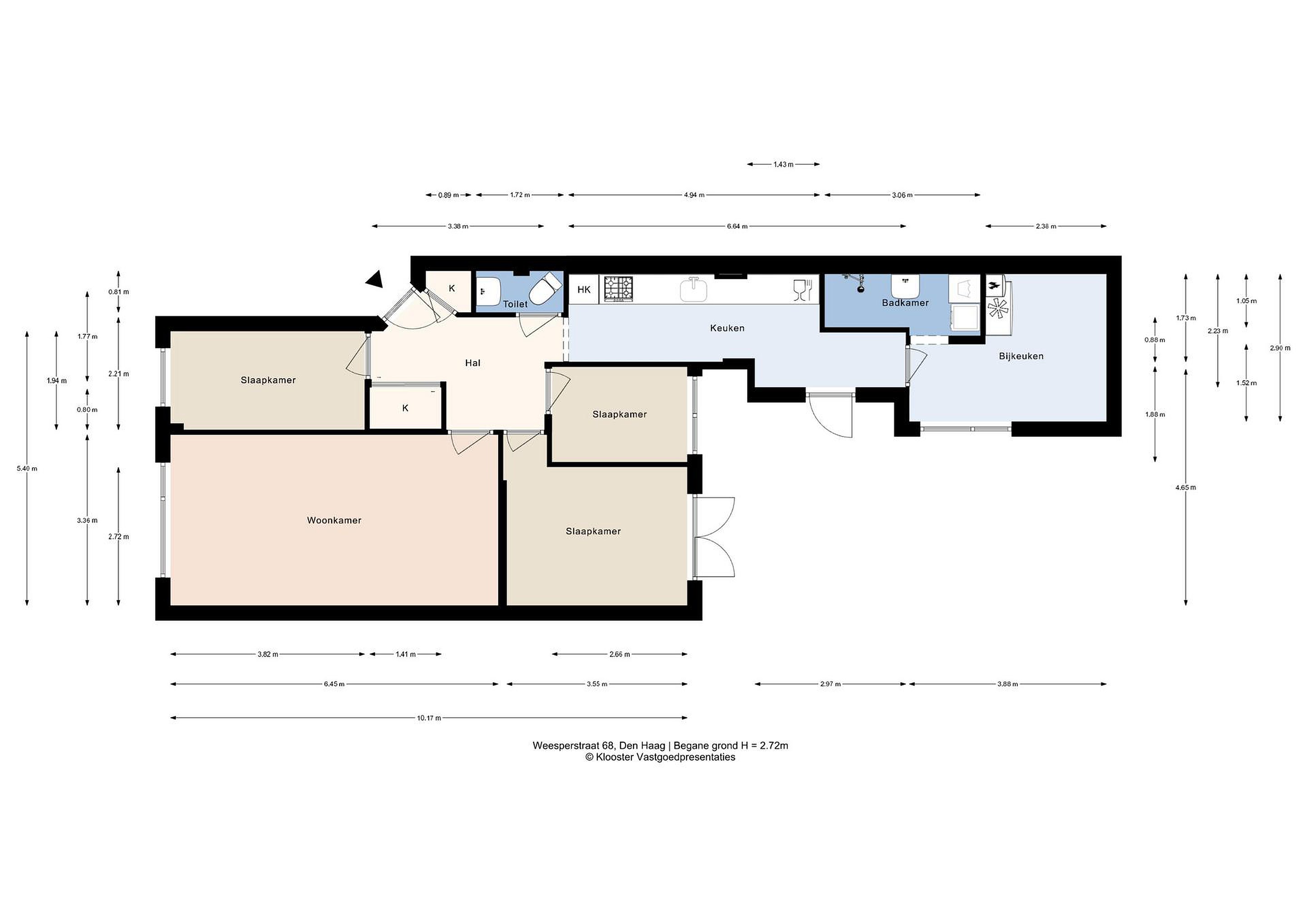
Begane grond
Entree woning, hal v.v. meterkast en toilet (hangend met fontein), ruime kast in de hal, vanuit de hal toegang tot de woonkamer, de woonkamer is voorzien van veel lichtinval, nette laminaatvloer en een prima zit-*en eethoek. Aan de achterzijde een ruime slaapkamer met openslaande deuren naar de tuin, de tweede slaapkamer (tussenkamer) is eveneens aan de achterzijde gelegen. De keuken is netjes onderhouden en v.v. 4 pits gaskookplaat, oven, vaatwasser, afzuigkap, koel-/vriescombinatie (los), aan de voorzijde treft u de derde slaapkamer aan en de badkamer is in de uitbouw gelegen v.v. inloopdouche, wastafel, wasmachine-/droger opstelling en handdoekradiator
Kortom een fijn appartement met zonnige achtertuin

Details
- Type woning: appartement (benedenwoning)
- Bouwjaar 1927
- Woonoppervlak: ca. 82 m2
- De V.v.E. is actief, bijdrage € 100,- per maand (1/3e aandeel)
- De grond is belast met erfpacht
- Verwarming en warm water middels cv combi ketel (bouwjaar 2012)
- De woning is geheel v.v. dubbel glas met kunststof kozijnen
- Uitgevoerde werkzaamheden: voor-en achtergevel zijn gevoegd en geïsoleerd, plafond + renovatie 5 jaar gelegen, kunststof-/dubbel glas 6 jaar
- Oplevering in overleg

Lees meer

Kenmerken

Overdracht

Prijs per m2
€ 3.659
Aangeboden sinds
15 oktober 2025
Status
Verkocht onder voorbehoud
Aanvaarding
In overleg

Bouw

Soort appartement
Benedenwoning, appartement
Soort bouw
Bestaande bouw
Bouwjaar
1927
Soort dak
Plat dak
Staat van onderhouden binnen
Redelijk
Staat van onderhouden buiten
Redelijk

Oppervlakte en inhoud

Indeling

Aantal kamers
4
Aantal slaapkamers
3
Aantal woonlagen
1
Voorzieningen
Tuin, schuifpui

Buitenruimte

Balkon
Nee
Schuur/berging
Nee

Maandlasten berekenen

De maandlasten voor je woning bestaan uit meer dan alleen de hypotheeklasten. Hieronder vind je een overzicht van de bijkomende kosten en lasten. Zo weet je precies wat je huis per maand gaat kosten. En met de handige vergelijkers kun je ook nog eens snel de beste deals sluiten!

  • Kaart
  • Streetview