Verkocht

Boterland 13 3751 KB Bunschoten-Spakenburg

46m2
Wonen
3
Kamers
0m2
Perceel
2023
Bouwjaar
Een buitenkans voor starters: Boterland 13 is er zo één die je niet vaak tegenkomt. Dit moderne appartement heeft niet alleen een energielabel A+, maar ook een bijzonder fijne ligging in het gebouw.

Je woont hier helemaal bovenin, op de hoek, met een vrij uitzicht en prachtig licht dat binnenvalt door het extra zijraam. De woonkamer oogt hierdoor ruim en levendig, met een natuurlijke verbinding naar het zonnige balkon op het zuiden. Hier geniet je van de zon tot in de late uurtjes.

Het appartement is strak en met zorg afgewerkt; echt instapklaar. De keuken en badkamer zijn netjes, de kleuren tijdloos en de afwerking modern. Met twee slaapkamers is er volop ruimte voor logees, een thuiswerkplek of hobbykamer.

Boterland 13 ligt op een prettige, rustige locatie met alle dagelijkse voorzieningen binnen handbereik. Ideaal als je op zoek bent naar comfort, licht en gemak
helemaal klaar voor een nieuw begin.
Begane grond
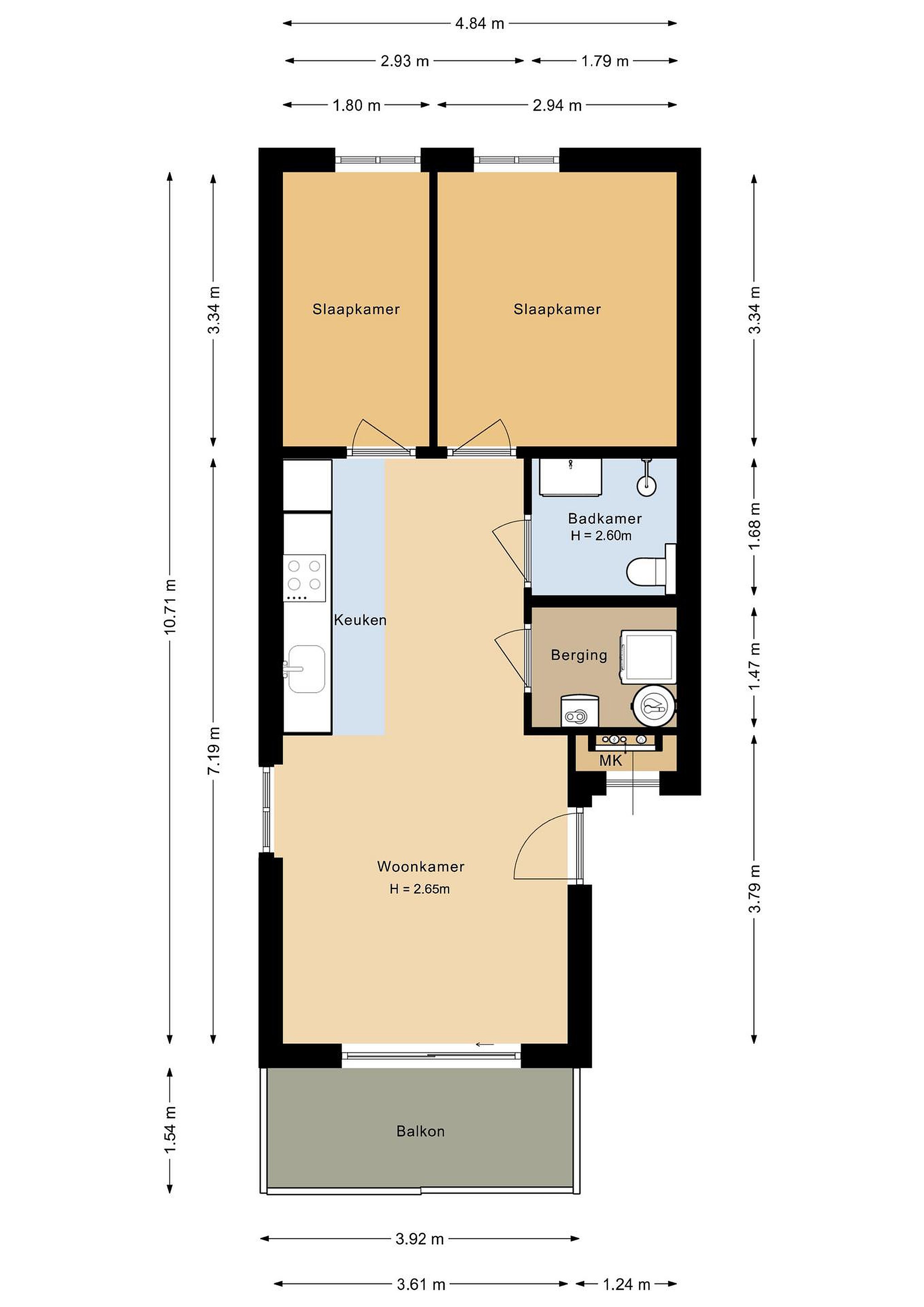
Aan de voorzijde bevindt zich de lichte woonkamer met een plafondhoogte van 2,65 meter. De grote raampartijen zorgen voor veel natuurlijk licht en geven toegang tot het balkon op het zuiden, waar je de hele dag van de zon kunt genieten.

De open keuken ligt in het verlengde van de woonkamer en is voorzien van een praktisch keukenblok met een kookplaat, oven en spoelbak. Dankzij de open indeling is dit een prettige plek om te koken en tegelijk contact te houden met het woongedeelte.

Aan de achterzijde liggen twee goed bemeten slaapkamers. Beide kamers zijn rechthoekig van vorm en daardoor uitstekend in te richten als hoofdslaapkamer en logeer- of werkkamer.

De badkamer is centraal gelegen en beschikt over een douche, wastafel en toilet. Aangrenzend bevindt zich een berging met ruimte voor de wasmachine en droger, en daarnaast een meterkast (MK) voor de technische installaties.

Details
- Elektrisch zonnescherm voorzijde
- Airco woonkamer
- Gezamenlijke tuin begane grond
- 5 Zonnepanelen

Lees meer

Verkoopgeschiedenis

Aangeboden sinds
13 oktober 2025
Verkoopdatum
8 december 2025
Looptijd
2 maanden

Kenmerken

Overdracht

Prijs per m2
€ 7.655
Aangeboden sinds
13 oktober 2025
Status
Verkocht
Aanvaarding
In overleg

Bouw

Soort appartement
Beneden boven woning, appartement
Soort bouw
Bestaande bouw
Bouwjaar
2023
Soort dak
Plat dak
Staat van onderhouden binnen
Goed
Staat van onderhouden buiten
Uitstekend

Oppervlakte en inhoud

Inhoud van de woning
159 m3
Oppervlakte gebouwgebonden buitenruimten
6 m2
Oppervlakte overige inpandige ruimten
0 m2

Indeling

Aantal kamers
3
Aantal slaapkamers
2
Aantal woonlagen
1
Voorzieningen
Vve checklist, balkon, airconditioning

Buitenruimte

Balkon
Ja
Schuur/berging
Nee

Maandlasten berekenen

De maandlasten voor je woning bestaan uit meer dan alleen de hypotheeklasten. Hieronder vind je een overzicht van de bijkomende kosten en lasten. Zo weet je precies wat je huis per maand gaat kosten. En met de handige vergelijkers kun je ook nog eens snel de beste deals sluiten!

  • Kaart
  • Streetview