Postjesweg 138B 1061 AX Amsterdam

50m2
Wonen
2
Kamers
0m2
Perceel
2009
Bouwjaar
Keurig tweekamer appartement van 50m2 in een modern complex.

De woning wordt gemeubileerd verhuurd en is direct beschikbaar. Minimale huurperiode 1 jaar.

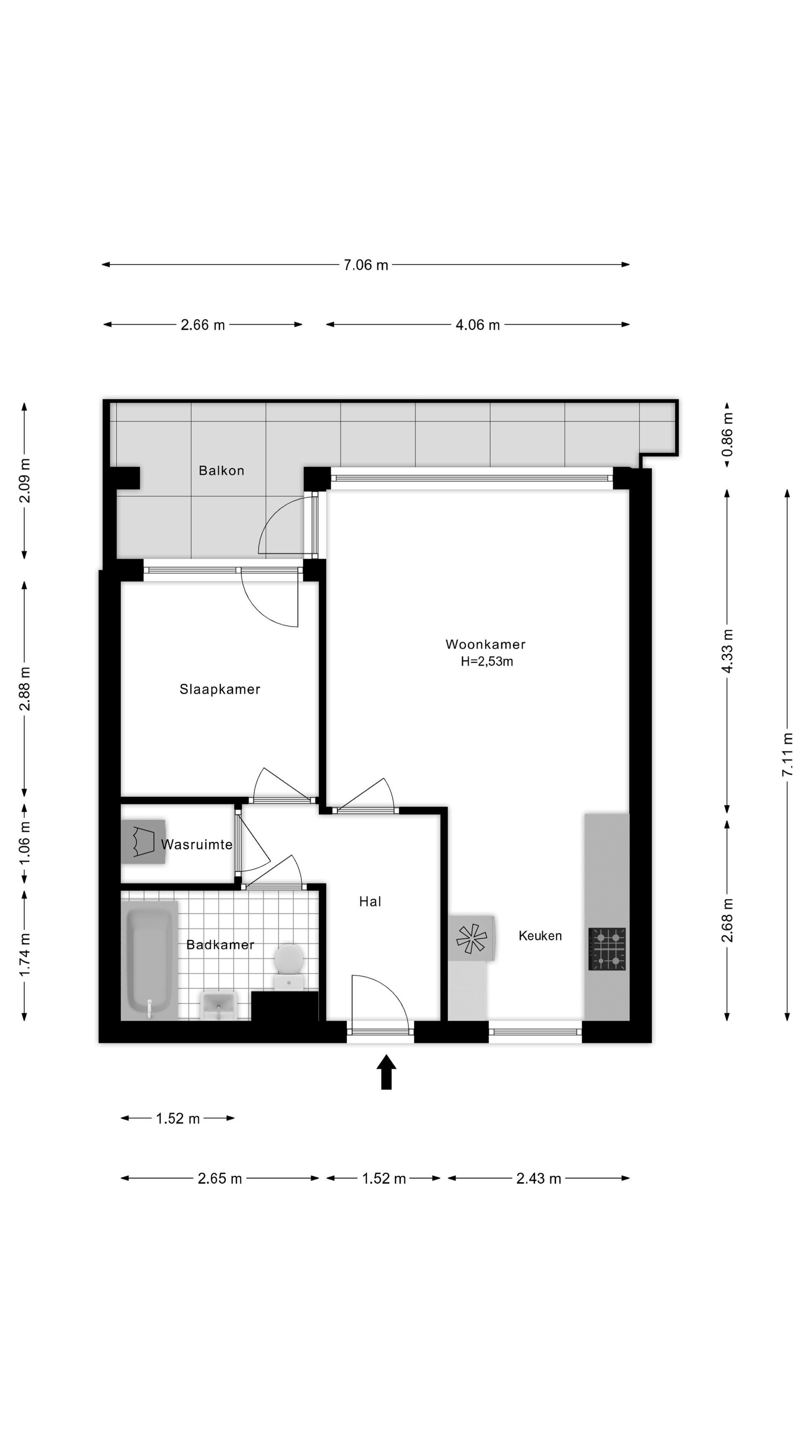
De woning is licht afgewerkt. Er is een open keuken met diverse apparatuur zoals een oven, keramische kookplaat en vaatwasmachine. Ingebouwde koelkast en veel kastruimte. Het balkon is zowel bereikbaar vanuit de woonkamer als vanuit de slaapkamer. Vanaf het balkon heeft u vrij zicht over de omgeving.

Bij binnenkomst in het complex wordt u verwelkomd in een ruime ontvangsthal met hoog plafond. De lift brengt u naar de vierde verdieping. Via een kleine galerij aan de achterzijde bereikt u de woning.

Entree woning, L-vormige hal, v.v. diverse kasten. Woonkamer met aangrenzend de keuken. Vanuit de woonkamer toegang tot het balkon, gesitueerd op het zuiden. Gegarandeerd zonnig dus!

De badkamer is eveneens vanuit de hal te bereiken. Deze is ruim en bevat een wandcloset toilet, een fraai dubbel wastafelmeubel, designradiator en een ligbad.

De woning is uitgebreid gemeubileerd en direct te bewonen

BIJZONDERHEDEN:

+ Woonoppervlak ongeveer 50 m2.
+ Huursom exclusief gas, water, elektra
+ servicekosten 75,- per maand
+ 1x woonkamer (inclusief open keuken) en 1x slaapkamer
+ Ruime badkamer met ligbad
+ Terras van 5 m2 op het zuiden.
+ Verzorgd complex
+ Bereikbaar met Lift
+ A+-energielabel
+ eigen privé parkeerplaats op een afgesloeten terrein
+ gezamenlijke overdekte fietsenstalling
+ Volledig gemeubileerd


------------------------------ ENGLISH TRANSLATION ----------------------------------------------

Neat two-room apartment (living room plus bedroom) totaling 50m2 in a modern complex.

The apartment is rented furnished and is immediately available. Minimum rental period is one year.

The apartment has bright finishes. It features an open-plan kitchen with various appliances, including an oven, ceramic hob, and dishwasher. There's also a built-in refrigerator and ample cupboard space. The balcony is accessible from both the living room and the bedroom, offering unobstructed views of the surrounding area.

Upon entering the complex, you'll be welcomed by a spacious reception hall with a high ceiling. The elevator takes you to the fourth floor. A small gallery at the rear provides access to the apartment.

Entrance to the apartment: an L-shaped hall with various cupboards. The living room is adjacent to the kitchen. The living room provides access to the south-facing balcony, guaranteeing sunshine!

The bathroom is also accessible from the hall. It is spacious and features a wall-hung toilet, a beautiful double vanity, a designer radiator, and a bathtub.

The house is fully furnished and ready to move into.

SPECIAL FEATURES:

+ Living area approximately 50 m2.
+ Rental price excluding gas, water, and electricity.
+ Service costs €75 per month.
+ 1 living room (including open-plan kitchen) and 1 bedroom.
+ Spacious bathroom with bathtub.
+ 5 m2 south-facing terrace.
+ Well-maintained complex.
+ Elevator access.
+ A+ energy label.
+ Private parking space on a gated property.
+ Shared covered bicycle shed.
+ Fully furnished.
Lees meer

Kenmerken

Overdracht

Aangeboden sinds
11 november 2025
Status
Beschikbaar
Aanvaarding
Direct
Bijzonderheden
Gemeubileerd

Bouw

Soort appartement
Galerijflat, appartement
Soort bouw
Bestaande bouw
Bouwjaar
2009
Staat van onderhouden binnen
Goed
Staat van onderhouden buiten
Goed

Oppervlakte en inhoud

Indeling

Aantal kamers
2
Aantal slaapkamers
1
Aantal woonlagen
1
Voorzieningen
Vve checklist, balkon, ventilatie, glasvezel, lift

Buitenruimte

Balkon
Ja
Schuur/berging
Nee

Maandlasten berekenen

De maandlasten voor je woning bestaan uit meer dan alleen de hypotheeklasten. Hieronder vind je een overzicht van de bijkomende kosten en lasten. Zo weet je precies wat je huis per maand gaat kosten. En met de handige vergelijkers kun je ook nog eens snel de beste deals sluiten!

  • Kaart
  • Streetview