Verhuurd

Kronenburgersingel 223D 6511 AR Nijmegen

33m2
Wonen
2
Kamers
0m2
Perceel
2024
Bouwjaar
YOU CAN ONLY RENT IF YOU MEET ONE OF THE CRITERIA:
- if you already live in the Netherlands you can rent is you are getting divorced and need to stay close to your children
- or renovate your house.
- If you do not live in the Netherlands yet, you can rent this apartment as a landing spot in Nijmegen

This beautiful and spacious mansion is located in Nijmegen on the Kronenburgersingel. There are 6 brand new shortstay apartments in the building The house was built in 1897 and fully renovated in 2024.

Hip living in Nijmegen. That's possible in this area. Kronenburgersingel is located in the City Center area.

The house is easily accessible with many amenities nearby. Situated within walking distance of the center of Nijmegen, walking distance from a supermarket and walking distance from a train station. In addition, the nearest exit road in the vicinity is only an 8-minute drive away.
Begane grond
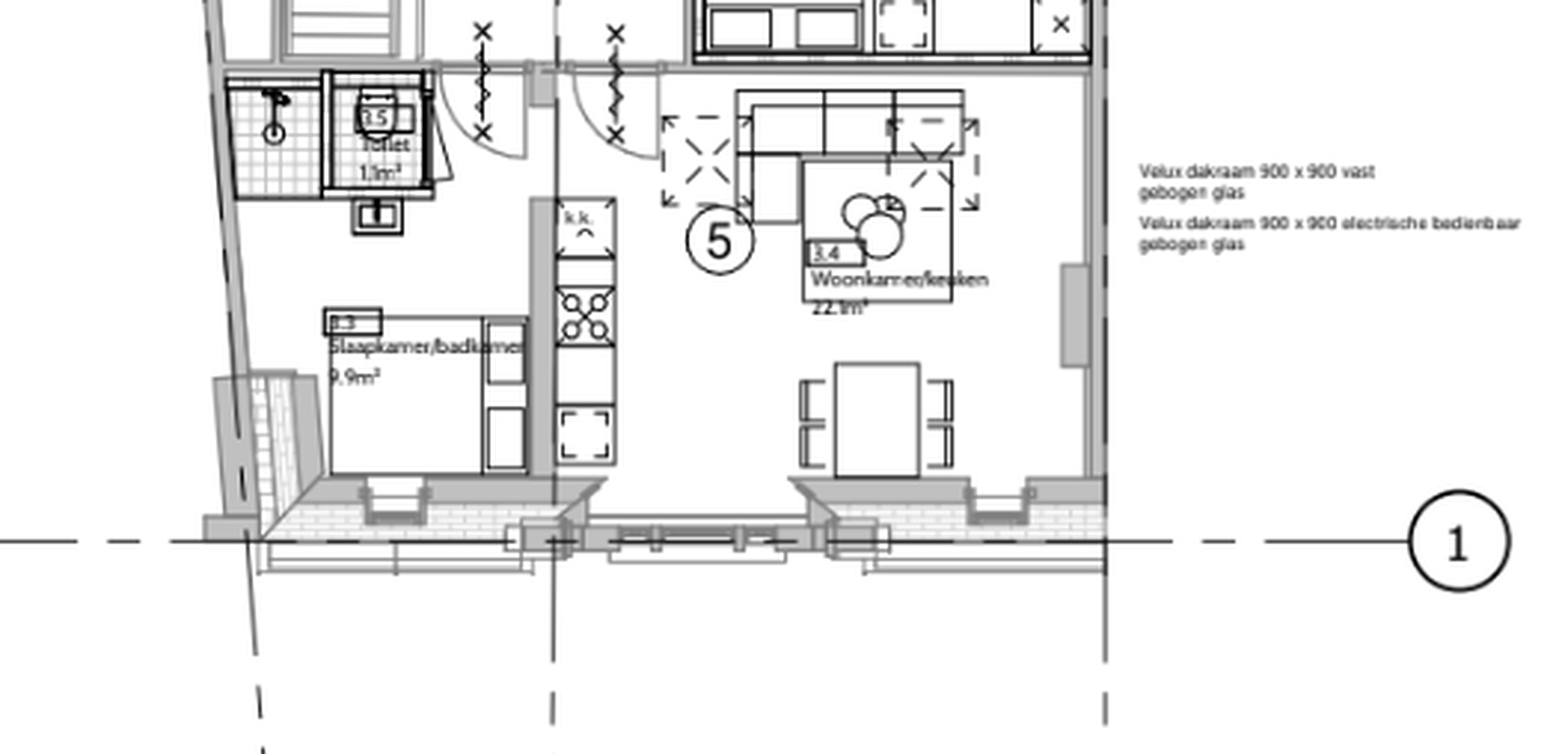
This apartment is located at the 2th floor.

It has a separate fully equipped kitchen.

Separate bedroom with ensuite bathroom with shower, sink. Separate toilet.

The washer and dryer are shared.
you will have your own part of the garden in the front of the building

Details
good to know:
- Total rental price including furniture, utilities, service costs and WiFi is € 1425- all in
- short stay of maximum 6 months. Available 1-11-2025
- fully furnished
- Pets are not allowed
- 2 months deposit
- Energy label A
- if you already live in the Netherlands you can only rent if you do not stay in Nijmegen after the rental period
- If you do not live in the Netherlands yet, you can rent this apartment as a landing spot and search for a long stay apartment in Nijmegen or any where else after the 6 months contract.

Lees meer

Verhuurgeschiedenis

Aangeboden sinds
7 januari 2026
Verhuurdatum
7 januari 2026
Looptijd
44 minuten

Kenmerken

Overdracht

Aangeboden sinds
7 januari 2026
Status
Verhuurd
Aanvaarding
In overleg
Bijzonderheden
Gemeubileerd

Bouw

Soort appartement
Bovenwoning, appartement
Soort bouw
Bestaande bouw
Bouwjaar
2024
Staat van onderhouden binnen
Uitstekend
Staat van onderhouden buiten
Uitstekend

Oppervlakte en inhoud

Indeling

Aantal kamers
2
Aantal slaapkamers
1
Aantal woonlagen
1
Voorzieningen

Buitenruimte

Balkon
Nee
Schuur/berging
Nee

Maandlasten berekenen

De maandlasten voor je woning bestaan uit meer dan alleen de hypotheeklasten. Hieronder vind je een overzicht van de bijkomende kosten en lasten. Zo weet je precies wat je huis per maand gaat kosten. En met de handige vergelijkers kun je ook nog eens snel de beste deals sluiten!

  • Kaart
  • Streetview