Molenstraat 1a 3958 BW Amerongen

109m2
Wonen
3
Kamers
0m2
Perceel
1965
Bouwjaar
Een gestoffeerde 3 kamer bovenwoning met loggia en berging op de begane grond. De bovenwoning is gelegen aan de Molenstraat in de oude dorpskern van Amerongen nabij de Amerongse bossen en de Amerongse bovenpolder. Amerongen ligt centraal in het land nabij uitvalswegen richting Utrecht, Wageningen, Arnhem en verder. Daarnaast is er een goede openbaar-vervoersverbinding voor handen.

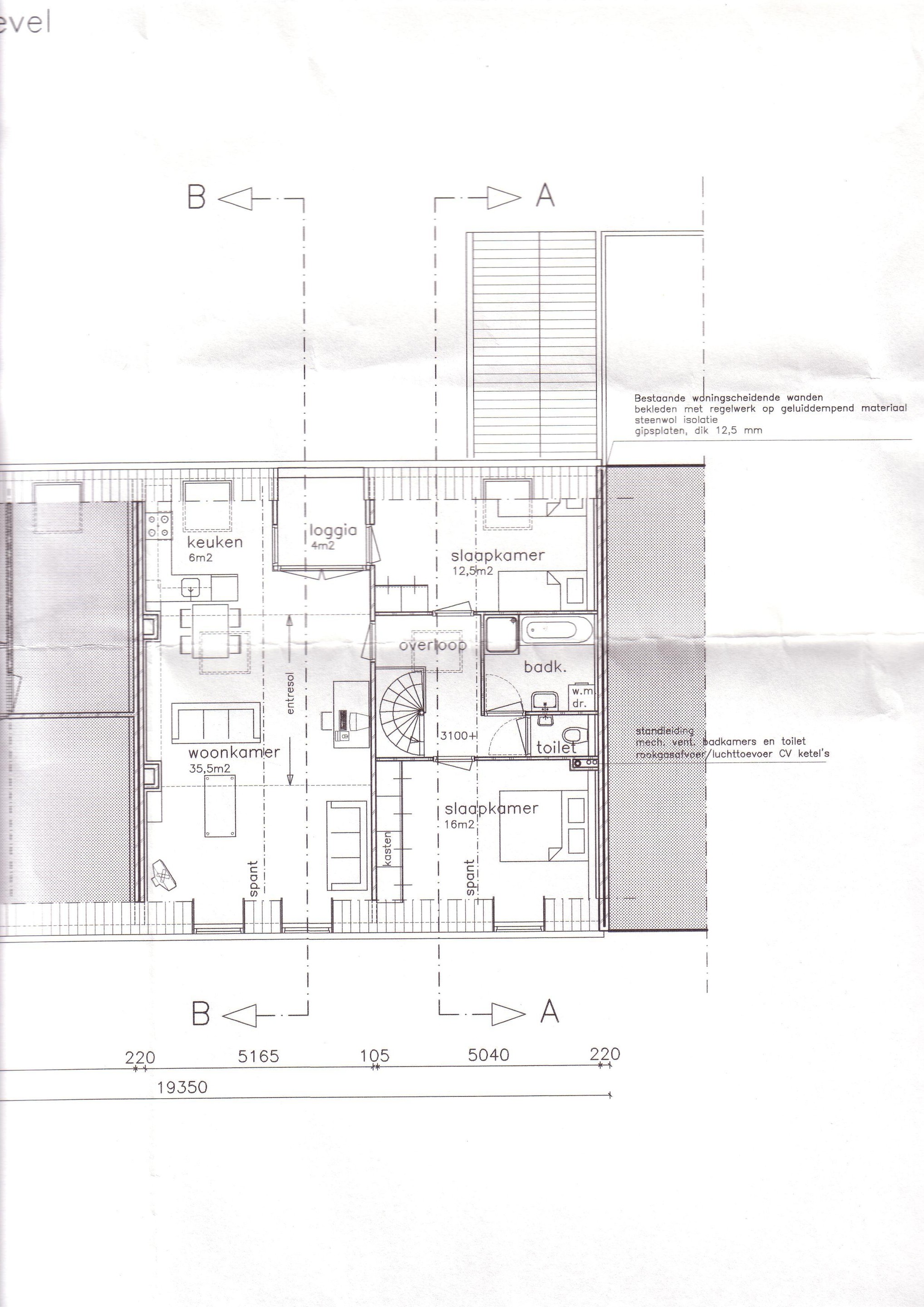
Indeling: hal met trapopgang, overloop met vide, ruim toilet met fonteintje, royale woonkamer (36m2) met twee dakkapellen en ruime vide (25m2) met dakraam, openslaande deuren naar loggia en aangrenzende keukenhoek (6m2) voorzien van koel/vriescombinatie, oven en kookplaat, werk/slaapkamer (16m2) met deur naar loggia, oost-zuidoost gelegen, luxe badkamer met ligbad en douche, wastafel en designradiator, 2e ruime slaapkamer (13m2) met dakkapel en dakraam. Boven de slaap- en badkamer bevindt zich nog een entresol (12m2). Hier kan ook worden geslapen of gewerkt. Zowel stenen als tapijt op de vloeren aanwezig en er zijn rolgordijnen.

Huurperiode: Per 20 februari 2026 voor min. 12 maanden.
Huurprijs: € 1.600,00 per maand exclusief gas, water, elektra, TV, internet en gemeentelijke heffingen. Géén huisdieren toegestaan.
Aan deze tekst kunnen geen rechten worden ontleend.
Lees meer

Kenmerken

Overdracht

Aangeboden sinds
3 februari 2026
Status
Beschikbaar
Aanvaarding
In overleg

Bouw

Soort appartement
Beneden boven woning, appartement
Soort bouw
Bestaande bouw
Bouwjaar
1965
Staat van onderhouden binnen
Goed
Staat van onderhouden buiten
Goed

Oppervlakte en inhoud

Indeling

Aantal kamers
3
Aantal slaapkamers
2
Aantal woonlagen
1
Voorzieningen
Schuur/berging

Buitenruimte

Balkon
Nee
Schuur/berging
Ja

Maandlasten berekenen

De maandlasten voor je woning bestaan uit meer dan alleen de hypotheeklasten. Hieronder vind je een overzicht van de bijkomende kosten en lasten. Zo weet je precies wat je huis per maand gaat kosten. En met de handige vergelijkers kun je ook nog eens snel de beste deals sluiten!

  • Kaart
  • Streetview